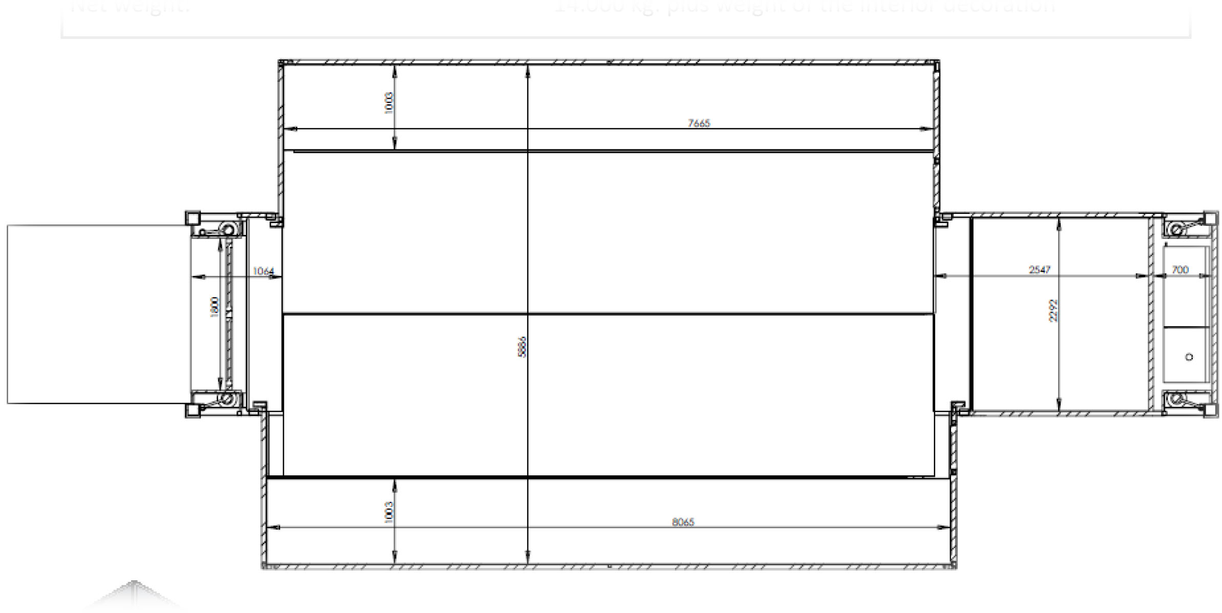
Slide Out Roadshow Container
Articlecode
Prijs
Bouwjaar
2010
Exhibition space
50-60 m2
Colour
White
Set up time
0 hour
Sort
Double slide out
Type
Medical trailer
Showtrailer
Slide Out Roadshow Container
More information
