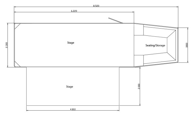
Light Weight Promo Trailer
Articlecode
Prijs
Bouwjaar
1999
Exhibition space
less than 40 m2
Colour
White
Set up time
Sort
Type
Showtrailer
More information
Articlecode
Prijs
Bouwjaar
1999
Exhibition space
less than 40 m2
Colour
White
Set up time
Sort
Type
Showtrailer